Back
Flat 1, 17 Kingsley Road
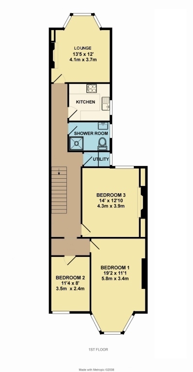
Floor Plan
Floor Plan
Back